咨询热线
18091189860
消防设计 消防现场勘查 消防工程施工 消防检测验收 消防手续办理
网站首页
关于我们
成功案例
新闻动态
业务范围
人才招聘
在线留言
联系方式
成功案例
honor
消防设施检测
消防维护保养
消防施工改造
消防设计
最新资讯
information
查看更多资讯
足浴店消防设计要点规范汇总
酒吧消防设计验收规范要点汇总
口腔诊所消防设计规范要点汇总
开店怎么做消防最省钱
开店开公司开培训机构等 消防设计备案手续流程
联系方式
18091189860
陕西安盾消防科技有限公司
地址:陕西省西安市未央区未央路凤城五路赛高街区3号3单元27层
电话:18091189860
手机:18091189860
网址:www.sxxfwb.com
查看更多
消防设计
>>当前位置:
首页
-
成功案例
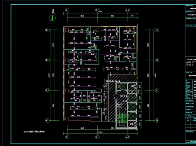
西安办公室消防设计
文章来源:
www.sxxfwb.com
时间:2022.10.27 浏览次数:
西安办公室消防设计
推荐阅读
足浴店消防设计要点规范汇总
酒吧消防设计验收规范要点汇总
口腔诊所消防设计规范要点汇总
开店怎么做消防最省钱
开店开公司开培训机构等 消防设计备案手续
西安消防检测发现部分微型消防站变成垃圾场
西安南大街一银行大楼着火,火势蔓延迅速,
西安消防提醒您端午佳节不要忘了消防安全
西安经开区居民小区将全部建立微型消防站
陕西渭南市行政服务中心开展消防安全知识培
西安将整治城中村消防隐患 重点防范电动车
西安消防检测公司提醒您家庭装修要防火
消防控制室建筑防火设计
教您“五招”防范汽车自燃
消防年检和消防维保有什么区别
消防系统维保的重要性
上一条:西安足浴店消防设计
下一条:西安益田KTV消防设计
友情链接:
西安消防验收公司
西安消防检测公司
西安消防检测
网站首页
关于我们
成功案例
新闻动态
业务范围
人才招聘
联系方式
陕西安盾消防科技有限公司 版权所有 咨询热线:18091189860 手机:18091189860
陕ICP备18007825号-1
邮箱:
1229365292@qq.com
网址:www.sxxfwb.com 地址:陕西省西安市未央区未央路凤城五路赛高街区3号3单元27层